Cara Gambar Rumah Sederhana

Oct 11, 2020

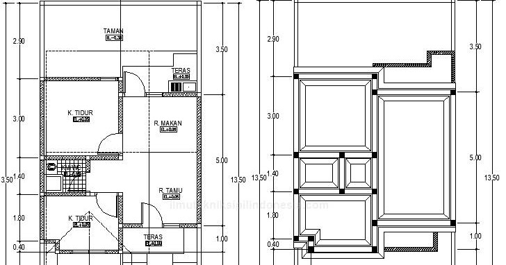
Cara Menggambar Rumah Tingkat Sederhana Untuk Anak - YouTube cara menggambar rumah sederhana untuk anak tk / how to draw house easy for kids - YouTube Cara Mudah Menggambar Rumah Sederhana Untuk Anak Anak - YouTube Menggambar rumah langkah demi langkah cara menggambar rumah sederhana / how to draw simple house - YouTube Cara Menggambar RUMAH SEDERHANA - YouTube | Cara menggambar, Gambar, Warna 25 Unik Menggambar Rumah Sederhana - Design Info On The Web cara menggambar rumah sederhana dengan mudah untuk anak anak / how to draw easy house for kids - YouTube Cara Mudah Menggambar Rumah Untuk Pemula | Drawing House for beginners - YouTube Cara Menggambar Rumah Tingkat Sederhana Untuk Anak - YouTube Contoh Gambar Rumah Sederhana Anak Sd - Rumah Joglo Limasan Work Cara Menggambar Rumah Yang Gampang - Cilacap Klik Cara Menggambar RUMAH SEDERHANA DENGAN PEMANDANGAN HUTAN - YouTube | Cara menggambar, Seni, Pemandangan Belajar menggambar rumah bertingkat dan mewarnai untuk anak dengan mudah Gambar Rumah Sederhana Untuk Anak Sd - Rumah Joglo Limasan Work cara menggambar rumah - sederhana dan cantiikkkkk - YouTube 40+ Contoh Gambar Sketsa Rumah dan Cara Membuatnya Cara Menggambar Rumah Sederhana dan Alam Pedesaan dengan Crayon/Oil Pastel | Pedesaan, Gambar, Cara menggambar Cara Gambar Rumah Sederhana - Kontraktor Interior Jakarta Cara Menggambar Rumah Sederhana untuk Pemula - YouTube 10 Contoh Refrensi Cara Menggambar Rumah Tingkat 2 Lantai Contoh Gambar Rumah Sederhana Kartun | Ideku Unik Cara Menggambar Rumah Tingkat | Mewarnai Gambar Rumah - YouTube Cara Menggambar Rumah Tingkat | Mewarnai Gambar Rumah - YouTube 25+ Contoh Gambar Pemandangan Rumah (Referensi Menggambar) Gambar Mewarnai Rumah yang Mudah Beserta Contoh - RomaDecade 3 Cara untuk Menggambar Rumah Sederhana - wikiHow Sketsa Gambar Rumah Sederhana Untuk Anak Sd - Rumah Joglo Limasan Work Pin oleh Norman Wijiharjo di Yang Saya Simpan di 2020 | Gambar, Cara menggambar, Anak Menggambar dan mewarnai rumah sederhana untuk anak TK. 40+ Contoh Gambar Sketsa Rumah dan Cara Membuatnya Cara Menggambar Rumah 3D Sederhana - YouTube cara menggambar rumah - untuk anak-anak for Android - APK Download Tutorial SketchUp: Menggambar Rumah Sederhana 3D | desainrumahsederhana.com 40+ Contoh Gambar Sketsa Rumah dan Cara Membuatnya Gambar Mewarnai | Lukisan rumah, Warna, Gambar cara menggambar rumah dengan bagus dan mudah - YouTube 7 Langkah Cara Membuat Denah Rumah Sederhana, Paling Mudah! 14+ Contoh Sketsa Rumah Minimalis (Elegan dan Eksotis) cara menggambar rumah sederhana / how to draw simple house - YouTube Bagaimana Cara Menggambar Denah Rumah Minimalis - ARSITAG Cara Menggambar Rumah Dengan Pensil untuk Kamu yang Bercita-cita Menjadi Arsitek Menggambar Rumah Kartun Sederhana dengan Adobe Illustrator – Desaindigital Bagaimana Cara Menggambar Denah Rumah Minimalis - ARSITAG Cara Menggambar Rumah Anak Sd Gambar Pemandangan - Rumah Joglo Limasan Work cara menggambar rumah sederhana / how to draw simple house - YouTube 40+ Contoh Gambar Sketsa Rumah dan Cara Membuatnya PlayTube.pk | Ultimate Video Sharing Website 6 Cara Membuat Denah Rumah Dasar untuk Pemula Tutorial SketchUp 4: Cara Menggambar Denah Rumah | desainrumahsederhana.com Mewarnai Rumah Adat Minangkabau | Sketsa, Gambar, Warna 8 Cara Membuat Denah Rumah Sederhana Untuk Pemula 15 Contoh Denah Rumah Minimalis Modern, Nyaman, dan Sederhana - ARSITAG Cara Menggambar Rumah Sederhana - Model Rumah Minimalis 2020 8 Cara Membuat Denah Rumah Sederhana Untuk Pemula 3 Cara untuk Menggambar Rumah Sederhana - wikiHow 40+ Contoh Gambar Sketsa Rumah dan Cara Membuatnya Bagaimana Cara Menggambar Denah Rumah Minimalis - ARSITAG 26 Gambar Pemandangan Yang Bagus Untuk Kelas- 17 Gambar Pemandangan Alam Berwarna Yang Indah Bimbel Brilian - Download 8 … di 2020 | Cara menggambar, Pemandangan, Lukisan Menggambar Rumah Gambar Rumah Untuk Anak Sd - Rumah Joglo Limasan Work 3 Cara untuk Menggambar Rumah Sederhana - wikiHow Bagaimana Cara Menggambar Denah Rumah Minimalis - ARSITAG Contoh Mewarnai Rumah - www.gambar-mewarnai.com | Gambar, Pemandangan, Warna Gambar Rumah Tugas Anak Sd - Rumah Joglo Limasan Work 6 Cara Membuat Denah Rumah Dasar untuk Pemula 40+ Contoh Gambar Sketsa Rumah dan Cara Membuatnya 50 Gambar Mewarnai yang Seru dan Menarik untuk Anak-anak 18+ Contoh Mewarnai Gambar Rumah dengan Beragam Desainnya Cara Membuat Tangga Rumah Minimalis | desainrumahsederhana.com Simak, 8 Tips Menggambar & Teknik Mewarnai Gambar Yang Benar 27 Gambar Inspirasi Rumah Idaman | Dilengkapi Desain & Denah Cara Menggambar Rumah | Ilmu Teknik Sipil Indonesia Menggambar rumah sederhana untuk anak dengan mudah Gambar Mewarnai Rumah Karya Sang Juara - Gambar Mewarnai | Buku mewarnai, Warna, Seni kanvas Bagaimana Cara Menggambar Denah Rumah Minimalis - ARSITAG Ciri-Ciri & Contoh Desain Rumah Minimalis Sederhana dan Modern 3 Cara untuk Menggambar Rumah Sederhana - wikiHow Cara Menggambar Rumah 15 Cara mudah menggambar hewan ini bikin gemar melukis 43 Contoh Desain Rumah Garasi Samping (Modern dan Minimalis) 15 Contoh Denah Rumah Minimalis Modern, Nyaman, dan Sederhana - ARSITAG Desain dan Denah Rumah Sederhana Dengan Biaya Murah | Ndik Home 6 Cara Membuat Denah Rumah Dasar untuk Pemula 55 Kumpulan Mewarnai Gambar Terbaru yang Bisa Mengembangkan Kemampuan Motorik Anak - seruni.id 60+ Gambar Mewarnai Seru, Bagus dan Mudah untuk Anak (Lengkap) Juins Carlo’s Blog: Membuat Bentuk Rumah sederhana 2D dengan OpenGL Di Ms.Visual C++2008 Ternyata Sederhana, Begini Mengambar Rumah dengan Benar Saat Psikotes - Tribun Jogja Gambar Desain Mushola Minimalis Ukuran 64 M2 | desainrumahsederhana.com Cara Menggambar Orang dengan Mudah, dari Wajah Hingga Seluruh Badan - Citizen6 Liputan6.com 7 Langkah Cara Membuat Denah Rumah Sederhana, Paling Mudah! 15+ Gambar Rumah Sederhana di Desa yang Asri dan Nyaman 97 Gambar Rumah Sederhana Sehat Gratis Terbaru - Gambar rumah Inspirasi Gambar Rumah Sederhana di Kampung dan Desa yang Menarik Denah Rumah Type 36 Skala 1 100 | SEON One Stop Solution PlayTube.pk | Ultimate Video Sharing Website Ciri-Ciri & Contoh Desain Rumah Minimalis Sederhana dan Modern 17+ Contoh Denah Rumah Minimalis (2020): Modern, Nyaman, dan Sederhana … Bagaimana Cara Menggambar Denah Rumah Minimalis - ARSITAG 7 Tren Denah Rumah 3 Kamar 2020. Minimalis & Engga Sumpek! Dapatkan Denah Rumah Minimalis Banyak Pilihan Dan Gratis | Gambar Desain Model Rumah Minimalis

Gambar Rumah Ukuran 5X7

Aplikasi Gambar Rumah